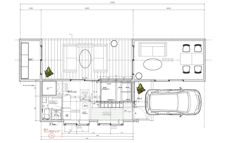
都会の狭小地で建てる事が出来る
年収250万円でも注文住宅の家が持てる
2×4のシンプル構造・短納期で施工
駅近へ転居する事が可能
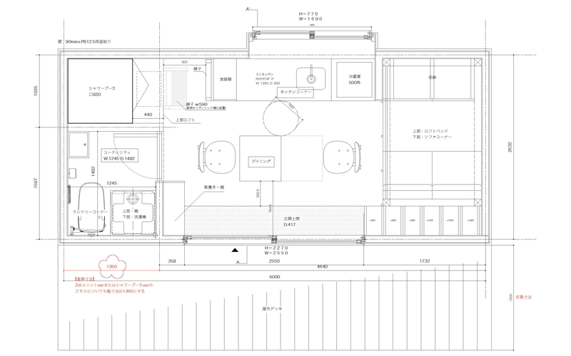
6坪標準タイプ
6坪というと、約12畳の空間です。多くの皆さまの今の住まいはどうでしょう?お風呂やトイレ、キッチンといった、生活に必要な水回り、玄関や廊下や収納スペースなどをとると、いわゆる6畳ひと間の一人暮らしの賃貸マンションのワンルーム程度の暮らしがイメージしやすいでしょう。では、そうした空間が果たして豊かな暮らしを提供できているかというと、残念ながら今の日本ではなかなかできていないというのが現状です。しかしたとえ6坪であっても、豊かなライフスタイルをつくることはできます。
この「カーサピッコロ」プロジェクトは、モノを持たないことが生活の豊かさをつくるという考えのもと、空間を最大限に活用した住宅のデザインを展開するものです。従来のタイニーハウスと少し違うのは、無理なくきちんと住めること。季節限定の別荘やセカンドハウス、または趣味の延長で作ったDIY小屋といったものではなく、都市や郊外の住宅地にもファーストハウスとして愛らしく佇まうしっかりとした我が家になるということです。 この6坪の住宅に暮らしてみると、これまで感じていた「これが欲しい」という考えが薄らぎます。それよりもたとえば、坪えるとすごく楽しい、いろいろなことができてワクワクする、といったこれまでにないプラスの感情が多々芽生えるはずです。6坪を当たり前とすると、暮らしへの眼差しが変わります。
スリムに、スマートに、そしてこれから新しくやってくる時代の到来に先駆けた未来の常識は、もしかするとカーサピッコロかもしれません。
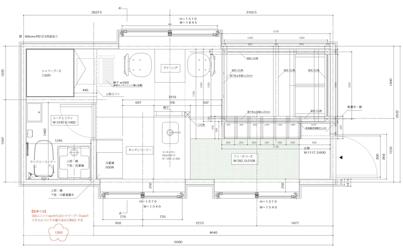
7坪標準タイプ
12坪標準タイプ
モデルハウス
大阪府八尾市にモデルハウスをご用意しております。ご見学をご希望の方は、ご連絡いただきましたらご案内させていただきます。
ミニマルな暮らし研究会 【運営会社】難波金属株式会社 〒660−0083 兵庫県尼崎市道意町6丁目48番3号 TEL:06-6411-2141 FAX:06-6441-2142
事業再構築
Copyright © ミニマルな暮らし研究会 All Rights Reserved.